Passer au contenu

/ École de design

Je donne

Rechercher

Le design d’intérieur, des programmes engagés!


Le design d’intérieur, des programmes engagés! 

L’automne dernier en fut un de collaborations pour les programmes de design d’intérieur de l’École de design! De riches partenariats ont permis aux étudiant·es participant aux ateliers de 3e année du baccalauréat et du DESS de concevoir pour des clients réels et de participer à l’amélioration du bien-être de différentes communautés.  

 

Corps fantômes

La session a commencé avec la réalisation de deux expositions conçues par des étudiantes à l’automne 2024, accompagnées par la chargée de formation pratiqué Aude Beauchamp-Bourdeau. Dans le cadre d’une collaboration entre le professeur Olivier Vallerand, la compagnie de création théâtrale La messe basse et le Théâtre Duceppe, ces deux expositions accompagnaient la pièce de théâtre Corps fantômes, portant sur l’activisme LGBTQ au tournant des années 1990, dans un contexte d’épidémie du VIH/sida, de meurtres homophobes et de répression policière. Le travail des étudiantes a permis de mettre en valeur des citations d’activistes, des photos de René LeBoeuf et de nombreuses coupures de journaux afin de bien faire comprendre le contexte de la pièce. Un très grand succès, entre autres démontré par de nombreuses photos de l’exposition circulant sur les réseaux sociaux et repartagées par le théâtre, les commentaires positifs reçus par le théâtre à propos de la transformation inédite du foyer ont donné à l’équipe le désir de renouveler l’expérience! 

 

Vernissage de l’exposition Corps fantômes, volet 1, à la salle d’exposition de la Place des Arts, septembre 2025, conception par Laury Côté et Marguerite Picard (photo par Maryse Boyce / Duceppe) 

 

Exposition Corps fantômes, volet 1, à la salle d’exposition de la Place des Arts, septembre 2025, conception par Laury Côté et Marguerite Picard (photo par Olivier Vallerand)  

 

Exposition Corps fantômes, volet 1, à la salle d’exposition de la Place des Arts, septembre 2025, conception par Laury Côté et Marguerite Picard (photo par Olivier Vallerand)  

Exposition Corps fantômes, volet 2, au foyer du théâtre Duceppe, octobre-novembre 2025, conception par Éléonore Leimanis et Léa Dos Santos Riboux (photo par Olivier Vallerand) 

 

Exposition Corps fantômes, volet 2, au foyer du théâtre Duceppe, octobre-novembre 2025, conception par Éléonore Leimanis et Léa Dos Santos Riboux (photo par Olivier Vallerand) 

 

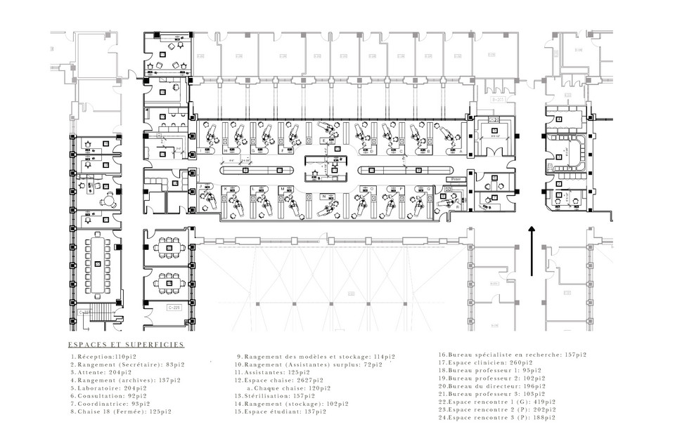
Dans le cadre des ateliers thématiques de 3e année, le programme a été approché cette année par deux entités de l’université à la suite du succès de la charrette réalisée à l’automne 2024 pour repenser les espaces communs du pavillon Marie-Victorin. Les étudiant·es ont ainsi eu à relever les défis de concevoir une nouvelle clinique d’orthodontie et un incubateur entrepreneurial pour MilleniUM Québecor. Après de nombreuses années dans des espaces loués hors campus, la Faculté de médecine dentaire souhaite aujourd’hui permettre aux étudiant·es de pratiquer leurs apprentissages directement sur le campus. Accompagné·es par la chargée de formation pratique Pascale Pasbeau, les étudiant·es ont eu à relever le défi de combiner compréhension des défis techniques liés aux équipements de soins dentaires et aménagement d’espaces contribuant à diminuer le stress et améliorer le bien-être des patient·es de la clinique. Encore une fois, la qualité des propositions a mené la faculté à souhaiter pour poursuivre la collaboration l’an prochain afin de concevoir des espaces de recherche en médecine dentaire.  

 

Réaménagement de la clinique d’orthodontie de l’Université de Montréal

Réaménagement de la clinique d’orthodontie de l’Université de Montréal, projet par Simone Simard 

 

 Réaménagement de la clinique d’orthodontie de l’Université de Montréal, projet par Simone Bouchard 

 

MilleniUM Québécor

MilleniUM Québécor est un service de l’université en pleine croissance dont la mission est le développement d’une culture entrepreneuriale responsable et le soutien à la réalisation de projets d’entreprises qui ont un impact dans la société. En lien avec cette mission, MilleniUM cherchait à mettre la création étudiante de l’avant en invitant les étudiant·es en design d’intérieur à réfléchir à la conception de nouveaux espaces facilitant la collaboration et l’innovation en entrepreneuriat étudiant. Accompagné·es par l’étudiante au doctorat Yasmine Gargouri, les étudiant·es ont eu à explorer les plus récentes expérimentations dans l’aménagement d’espaces de travail et d’innovation, afin de faciliter les échanges entre étudiante·s et entrepreneur·es.  

 

 

Aménagement d’un hub entrepreneurial pour MilleniUM Québécor, projet par Emma Descheneaux, Amélie-Rose Colin et Capucine Calteau 

 

 

Aménagement d’un hub entrepreneurial pour MilleniUM Québécor, projet par Liliane Ma et Mariane Fortier 

 

Organisme communautaire PAS de la rue

Un autre atelier thématique de 3e année a permis à des étudiant·es de collaborer avec l’organisme communautaire PAS de la rue dans le cadre d’une recherche du professeur invité David Smith. Les étudiant·es ont ainsi eu à se concentrer particulièrement sur les enjeux d’accessibilité dans la conception d’un nouvel espace pour cet organisme ayant pour mission de soutenir les personnes de 55 ans et plus en situation d’itinérance ou de grande précarité résidentielle. Ce défi permettait aux étudiant·es de se familiariser avec les méthodes de conception participative tout en découvrant la recherche en aménagement, en partenariat avec le Centre d'étude en responsabilité sociale et écocitoyenneté du Cégep de Rosemont où David Smith est chercheur.  

 

Aménagement d’un centre de jour pour PAS de la rue, projet par Clara Riggi 

Aménagement d’un centre de jour pour PAS de la rue, projet par Hailey Fortune 

 

MultiCaf

Finalement, au DESS, en deuxième partie de l’atelier-séminaire, le professeur Olivier Vallerand a continué sa collaboration annuelle avec des organismes communautaires en demandant aux étudiant·es d’optimiser l’aménagement des locaux de MultiCaf. Les étudiant·es ont eu à concevoir une activité de conception participative afin de bien comprendre les besoins des employé·es, bénévoles et personnes utilisant les services de cet organisme regroupant cafétéria à faible coût, épicerie solidaire, services de soutien en précarité alimentaire et jardins communautaires. Le défi était d’autant plus grand que les locaux se trouvent dans un sous-sol sans lumière naturelle! En six semaines, les étudiant·es ont bien cerné les enjeux et proposé une série de solutions et stratégies tenant compte des ressources financières limitées de l’organisme et du contexte physique difficile. Plusieurs ont visité à de nombreuses reprises les lieux afin de bien comprendre l’expérience de l’utilisation des services de l’organisme. L’exposition des projets la veille de la fermeture de l’organisme pour la période des fêtes a permis aux étudiant·es de constater encore une fois la pertinence des idées proposées pour cet organisme très fréquenté. Quelques semaines plus tard, la direction est déjà en réflexion sur la mise en place rapide de pistes présentées par différentes équipes.  

 

 Exposition et séance de travail finale pour le réaménagement des locaux de MultiCaf, décembre 2025 (photos par Florine Brigant)

 

Toutes ces collaborations permettent aux étudiant·es de vivre directement l’expérience de devoir naviguer les besoins souvent variés et parfois contradictoires de personnes et groupes réels. Elles soulignent aussi le potentiel riche du design d’intérieur pour la création d’environnements stimulants, confortables et porteurs de guérison. Tant l’équipe professorale que les étudiant·es sont extrêmement fièr·es de ces contributions à la société et stimulé·es par le défi de toujours faire plus et mieux.